Ul 50e là tiêu chuẩn chứng nhận UL để cân nhắc về môi trường của vỏ thiết bị điện. Tiêu chuẩn bao gồm các yêu cầu về cấu trúc và hiệu suất môi trường bổ sung của vỏ bọc cho thiết bị điện với các cân nhắc về môi trường. Tiêu chuẩn áp dụng cho thị trường Hoa Kỳ, Mexico và Canada.
Tiêu chuẩn UL 50e áp dụng cho các thiết bị điện được lắp đặt và sử dụng ở những vị trí không nguy hiểm theo mã điện Canada Phần I CSA c22.1 và mã điện quốc gia NFPA 70. Các quy định của vòi hoa sen ul 50e điện Mexico NOM-001-SEDE như sau:
1) Vỏ bọc cho nơi ở trong nhà, loại 1, 2, 5, 12, 12K và 13;
2) Vỏ bọc cho các vị trí trong nhà hoặc ngoài trời, loại 3, 3R, 3S, 4, 4x, 6 và 6P.
Ul 50e bao gồm các yêu cầu về cấu trúc môi trường và hiệu suất bổ sung của vỏ. Các yêu cầu chung đối với vỏ bọc được bao gồm trong tiêu chuẩn CSA C22.2 số 94.1, UL 50 và NMX-J-235/1-ance hoặc kết hợp với tiêu chuẩn này cho các sản phẩm sử dụng cuối cùng.

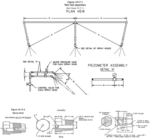
Kiểm tra ul 50e bao gồm các kiểm tra sau: Kiểm tra nhỏ giọt, kiểm tra mưa, kiểm tra bụi, kiểm tra đóng băng bên ngoài, kiểm tra ống, chống ăn mòn trong nhà, chống ăn mòn ngoài trời, kiểm tra ngâm, kiểm tra áp suất, kiểm tra loại trừ dầu, kiểm tra máy giặt, kiểm tra đầu vào que, kiểm tra lệch, tiếp xúc với nước và kiểm tra ngâm. Bài viết này chỉ thảo luận về thử nghiệm tiếp xúc với nước và ngâm trong tiêu chuẩn UL 50e, giới thiệu vòi hoa sen ul 50e.
Chức năng chính củaVòi hoa sen ul 50eLà kiểm tra các tính chất vật lý và các tính chất liên quan khác của điện tử, sản phẩm điện, đèn, tủ điện, linh kiện điện và các sản phẩm khác trong điều kiện thời tiết mưa mô phỏng. Sau khi thử nghiệm, thông qua xác minh để xác định xem hiệu suất của sản phẩm có đáp ứng các yêu cầu hay không, để tạo thuận lợi cho việc thiết kế, cải tiến, xác minh và kiểm tra nhà máy sản phẩm.

Vòi hoa sen ul 50e chủ yếu mô phỏng các điều kiện khác nhau của lượng mưa tự nhiên, bao gồm kích thước, tốc độ, lượng mưa, góc mưa, v. v., để phun Sản phẩm đã thử nghiệm.
Vòi hoa sen ul 50e thường bao gồm:
1. Hệ thống cấp nước: chịu trách nhiệm cung cấp nguồn nước sạch và ổn định, đồng thời kiểm soát áp lực nước và tốc độ dòng nước thông qua việc điều chỉnh áp suất vòi hoa sen ul 50e.
2. Hệ thống phun nước: Bao gồm một số Đầu phun nước được thiết kế cẩn thận để đảm bảo sự phân bố và đặc tính của hạt mưa đáp ứng các yêu cầu tiêu chuẩn.
3. Hệ thống điều khiển: Được sử dụng để thiết lập và kiểm soát các thông số của thử nghiệm mưa, chẳng hạn như thời gian mưa, lượng mưa, v. v., và theo dõi và ghi lại dữ liệu thử nghiệm theo thời gian thực.

Tại nơi làm việc, nước được truyền qua hệ thống cấp nước đến vòi phun, sau đó phun theo một cách cụ thể để tạo thành một lượng mưa mô phỏng. Sản phẩm đã thử nghiệm được đặt trên vòi sen ul 50e cố định trong phòng mưa và được phun nước mưa. Bằng cách kiểm soát các thông số khác nhau, có thể mô phỏng cường độ và loại lượng mưa khác nhau.
1. Số vòi phun và góc phun, góc phun là 45 °.
2. Áp lực phun nước, thường là 34,5kpa hoặc có thể điều chỉnh để đáp ứng các yêu cầu kiểm tra khác nhau.
3. Chiều cao mối nối cột nước của vòi phun có thể điều chỉnh, phạm vi có thể từ 300mm đến 1200mm hoặc 1000mm đến 2000mm.
4. Thời gian thử nghiệm có thể điều chỉnh và có thể được đặt từ 0 đến 99999.9 PHÚT.
5. Vật liệu hỗ trợ có thể được tạo thành vật liệu nhôm hoặc cấu hình nhôm công nghiệp, và đế được trang bị bánh xe phanh Đai thông dụng.
6. Cấu trúc và chức năng: vòi sen ul 50e có thể bao gồm các bộ phận như Đầu phun nước, giá đỡ, đồng hồ đo áp suất, v. v. Thiết kế khoảng cách và cấu trúc của Đầu phun nước phải tuân thủ các yêu cầu đồ họa tiêu chuẩn UL cụ thể.
| Mô hình | R-UL020 | |
Kích thước tổng thể (mm) | 800*1500*3800mm | |
Phạm vi điều chỉnh độ cao của thiết bị phun | 1000-3600mm (có thể điều chỉnh) | |
Thông số | Số đầu phun | 3 đầu phun |
Khoảng cách vòi phun | 710mm | |
Đường kính lỗ phun | Φ5mm | |
Áp lực nước | 34,5kpa | |
Kích thước nền tảng mẫu | ||
Tải trọng của tải nền tảng mẫu | 100 kg | |
| ||
| ||
LIBVòi hoa sen ul 50eLà tuyệt vời trong các thông số kỹ thuật trên:
A. sử dụng quy trình sản xuất vòi phun tiên tiến để đảm bảo tính đồng nhất của phân phối hạt mưa cao hơn tiêu chuẩn công nghiệp;
B. Hệ thống điều chỉnh áp suất duy nhất không chỉ có thể duy trì chính xác áp suất đã đặt mà còn có chức năng bù tự động của biến động áp suất để đảm bảo độ ổn định của thử nghiệm;
C. Điều chỉnh chiều cao vòi phun thông qua điều khiển điện, vận hành thuận tiện và độ chính xác cao;
D. Kiểm soát thời gian thử nghiệm chính xác đến 0.1 phút, đảm bảo chắc chắn cho việc kiểm tra trình độ nghiên cứu khoa học;
E. Cấu trúc hỗ trợ đã được tăng cường để đảm bảo sự ổn định và giảm trọng lượng tổng thể của thiết bị, thuận tiện cho việc vận chuyển và lắp đặt.
F. Hệ thống điều khiển thông minh độc đáo có thể nhận ra giám sát từ xa và ghi dữ liệu, giúp cải thiện đáng kể hiệu quả kiểm tra và thuận tiện quản lý.
1. Sản phẩm điện và điện tử
Bao gồm điện thoại di động, máy tính, máy tính bảng, bộ sạc, vỏ điện, v. v., để đảm bảo rằng các sản phẩm này vẫn có thể hoạt động bình thường trong môi trường ẩm ướt, để tránh đoản mạch, thất Bại và các vấn đề khác gây ra bởi nước.
2. Phụ tùng ô tô
Đèn pha ô tô, đèn hậu, bảng điều khiển, cảm biến, Bộ điều khiển điện tử và các bộ phận khác cần có hiệu suất chống nước tốt để thích ứng với các điều kiện thời tiết khác nhau.
3. Thiết bị ngoài trời
Đèn đường, camera giám sát, thiết bị liên lạc, tấm pin mặt trời và các thiết bị ngoài trời khác thường tiếp xúc với môi trường mưa, thông qua thử nghiệm mưa có thể xác minh khả năng bảo vệ của nó.
4. hàng không vũ trụ
Các bộ phận máy bay, vỏ tàu vũ trụ, vv, đòi hỏi khả năng chống nước rất cao và vòi sen ul 50e giúp đảm bảo rằng chúng duy trì hoạt động bình thường trong điều kiện thời tiết khắc nghiệt.
Xem ở đây, tôi tin rằng bạn có một sự hiểu biết nhất định về vòi hoa sen ul 50e, nếu bạn lo lắng về thử nghiệm hiệu suất chống nước của sản phẩm, vòi hoa sen LIB ul 50e sẽ là lựa chọn lý tưởng của bạn. Các thông số kỹ thuật chính xác, hiệu suất đáng tin cậy và danh tiếng thương hiệu xuất sắc có thể đảm bảo chắc chắn cho chất lượng sản phẩm của bạn. Liên hệ với chúng tôi ngay hôm nayInquiry@libtestchamber.comĐể biết thêm chi tiết sản phẩm và Ưu Đãi Đặc biệt!
English
русский
français
العربية
Deutsch
Español
한국어
italiano
tiếng việt
ไทย
Indonesia
